(1)断熱等性能等級6以上
(2)再生可能エネルギーを除く一次エネルギー消費量削減率35%以上
(3)再生可能エネルギーを含む一次エネルギー消費量削減率100%
(4)高度エネルギーマネジメントの導入
―――この4つの要件をクリアし、ZEH水準(ネット ゼロ エネルギー ハウス)を上回る省エネ性能と、災害時の備えを両立した「GX志向型住宅」が、いま注目を集めている。
なかでも、ポラスグループ ポラスマイホームプラザが手がけた新築戸建分譲住宅「フォレストレ大和田 GXgrade」(全17邸 4,490万円~5,990万円 販売中)は、先進的でチャレンジングな独自技術を採り入れるなどで、すでに4棟が成約済みに。
ポラスマイホームプラザが展開していくGX志向型住宅「GXgrade」の特長と注目ポイントをチェックする前に、まずは「フォレストレ大和田 GXgrade」の所在地・アクセス・間取りから。
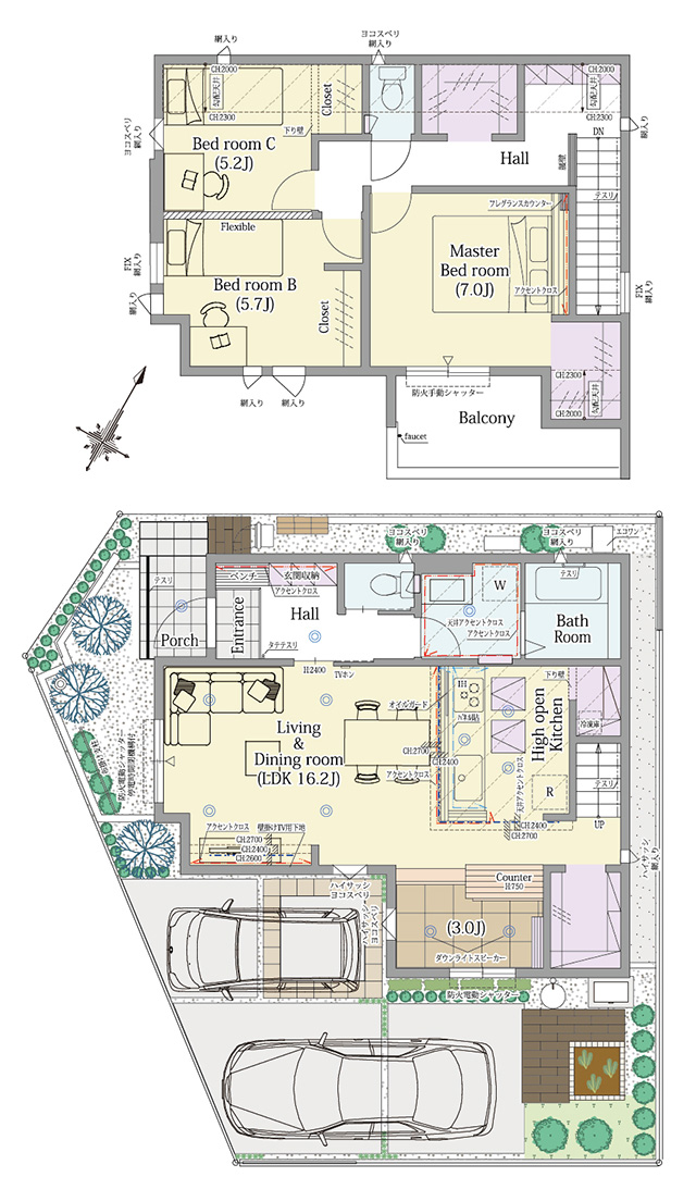
フォレストレ大和田 GXgrade
一次エネルギー消費量100%削減による卓越した光熱費削減効果があるポラスマイホームプラザ「フォレストレ大和田 GXgrade」は、東武アーバンパークライン大和田駅から歩いて14~15分、埼玉県さいたま市見沼区堀崎町の、洪水ハザードマップに該当しないおだやかな住宅街に立地。
歩いて3分ほどの堀崎町バス停からはJR東北線(宇都宮線)東大宮駅へもアクセスできる。
土地面積は 108.52m2~109.45m2、100.1m2 ~106.29m2。建物面積は 94.08m2~95.93m2、93.46m2~95.84m2。
間取りは 3LDK ~ 5LDK。
太陽光発電システム全棟標準搭載、駐車スペース全棟2台分。
販売価格 4,490万円~5,990万円。
―――では、ここから断熱等性能等級6 でZEH水準を上回る省エネ性能を持つ GX志向型住宅「フォレストレ大和田 GXgrade」の優位性をチェック。
年間8万円以上の水道光熱費削減
ポラス「GX grade」は、ハイブリッド給湯器による給湯費用の削減や、太陽光パネルによって、ZEH水準の住宅と比較し、年間8万5,259円(うち太陽光発電分7万5,369円)の水道光熱費を削減できることを試算・確認済み。
創エネルギー・省エネルギーにより、一次エネルギー消費量を削減することで、光熱費が大幅に削減され、環境にも財布にも優しい生活がおくれる。
ZEH水準を大きく上回る省エネ性能
断熱等性能等級6の住宅の室内は、等級5と比較して冬場で1.8度~2.0度の差を生んでいる。
高い断熱性能により、夏場はクーラーボックスのように外の暑さを遮断しながら室内を涼しく保ち、冬場は魔法瓶のように暖かい空気をほとんど逃さずに室温を保ってくれる。
高断熱によって、屋内の温度は均一になりやすいため、廊下や洗面所に出ても寒暖差が小さく、健康的な暮らしをサポートします。
ポラスグループの技術を結集してチャレンジした構成
実際に外観をみると、断熱対策として窓ガラスエリアを小さくとっていることがわかる。
それなのに、室内の採光性はたっぷり。この断熱性能と快適性を極限まで両立させている点も、「ポラスグループの技術を結集してチャレンジした構成」という。
アルゴンガス入りの高性能窓
アルミ樹脂複合フレームとLow-E複層ガラスにより国内最高レベルの断熱性能を実現した窓を採用。
複層ガラスの間には空気よりも熱を伝えづらいアルゴンガスが注入されていて、熱の出入りが抑えられることで夏も冬も快適に。
また、冬場もガラスやフレームが冷たくならないので不快な結露も防げる。
高出力・高効率のソーラーパネル
ポラス「GX grade」は、高出力・高効率を実現させた、太陽光モジュールを採用。
発電した電気を効率よく変換できるパワーコンディショナにより、日射の弱い雨や曇りの日でも高い変換効率を維持できる。
ハイブリッド給湯器により賢く給湯
太陽光発電と連動可能なハイブリッド給湯器「ECO ONE X5」を採用。
低いランニングコストに加え、太陽光発電の余剰電力でお湯をつくるから、さらに省エネに。
―――そして「レジリエンス ハウス」(災害に強い家)としての特長もいろいろある。
災害時も停電のない暮らし
太陽光発電によって、昼間の電気を確保するため、停電時でもスマートフォンの充電や家電が使える。
床下に貯水用タンクを搭載
ポラス「GX grade」は、災害や断水時の「飲料水・生活水」を確保できる大容量貯水タンク「マルチアクア」も標準装備。
水道水を普段使いにしながら鮮度の高い36Lの水が常に床下に貯蔵し、断水時に高圧フットポンプで加圧することで、蛇口やトイレからかんたんに衛生的な水を取水できる。
ハイブリッド給湯器「ECO ONE X5」の非常用取水栓
ハイブリッド給湯器「ECO ONE X5」は、災害時に断水してもタンク内のお湯・水を非常用として利用できる。
さらに、停電時でもガスさえ供給されていれば、家庭用ポータブル電源や太陽光発電の自立運転機能を使ってお湯の供給が可能。
停電時にも日射があれば電気が使える 屋外パワーコンディショナー
停電時でもシステムに損傷のない場合であれば、パワーコンディショナーを「自立運転モード」に切り替えることで、「非常用コンセント」から電気を取り出せる。
大型パントリー セカンド冷蔵庫
ポラス「GX grade」は、大型パントリーやセカンド冷蔵庫をキッチンのすぐそばに設置できるように構成。
多めに食材をストックすることや、保存食をしまうことができる。
また保安灯は、電気を消した後でも、暗い足元を照らし、寝室と階段の避難経路を照らしてくれる。取り外せば懐中電灯に。
―――ことし5月から60件を超える見学・問い合わせが続く、ポラスマイホームプラザ GX志向型住宅「フォレストレ大和田 GXgrade」(全17邸 4,490万円~5,990万円 販売中)の詳細は、公式サイトをチェック↓↓↓
https://www.polus.jp/kodate-my/owada38/
ポラスマイホームプラザ 子育て 省エネ レジリエンス の3軸で戸建分譲住宅を開発
ポラスマイホームプラザは、「子育て」「省エネ」「レジリエンス」の3つを軸に戸建て分譲住宅を開発し、GX促進に向け、第三者評価による省エネラベルを取得した「GX grade」シリーズなどで、今後も環境にも暮らしにも優しい住宅の普及に取り組んでいく。
ポラスマイホームプラザ 森田昌久 部長
ポラスマイホームプラザ 内野貴通 営業企画設計課 課長
ポラスマイホームプラザ 高橋健太郎 営業企画設計課 1係 係長
ポラス暮し科学研究所 野田将樹 住環境G 課長
